だいすきだから、
木の家コラム
高齢者と暮らす住まい
公開日:
現代では核家族での生活が一般的ですが、いずれは家族の形が変化し、拡大家族として暮らすことも珍しくありません。そのきっかけの一つとして多いのが、夫や妻の両親のうちどちらかが一人暮らしとなり、生活の不安から同居を考えるケースです。その際には、新築やリノベーションを機に同居を始めることもあります。
しかし、年齢や生活背景の異なる世代が同じ家で暮らすには、生活リズムや価値観の違いから、無意識のうちにお互いに負担やストレスを感じる場面が出てきます。だからこそ、「どうすれば高齢者と気持ちよく暮らせるか」を考えることは、家づくりにおいて大変重要な課題となります。
ほどほどのつながりと独立性のバランス
高齢者と同居するといっても、生活のすべてを共有することは現実的ではありません。食事の時間や睡眠のリズム、趣味や過ごし方はどうしても異なり、完全に同じ行動パターンを持つのは難しいからです。
例えばリビングと直結するような部屋は便利に思えますが、常に気配を感じることでお互いに落ち着かないこともあります。そのため、少し距離をとりながらも行き来しやすい空間配置が望ましいといえます。
ただし、反対に独立性が強すぎて互いの存在が見えなくなるのも考えものです。気軽にリビングへ出てこられる程度の距離感、つまり「近すぎず遠すぎず」が理想的な関係をつくります。
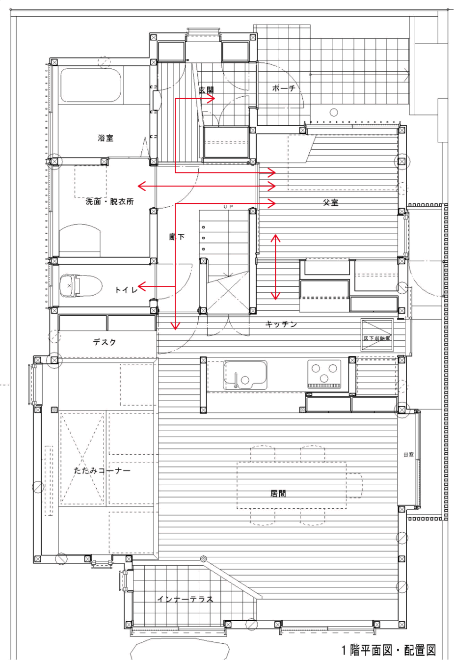
座敷が高齢者(父親)の寝室となっていたため、居間で遅くまでTVを見るもとができなかった。
父室の寝床をベットとし、就寝を容易にする。
父室の独立性を重視しながら、家族との繋がりも考えた。
外とのつながりを意識した住まい
高齢者は家で過ごす時間が長くなる傾向にあります。そのため、住まいは単なる居場所ではなく、社会との接点を保てる場であることが大切です。
窓から通りの様子を眺められる配置にしたり、玄関までの動線を工夫して友人や近隣の人が訪ねやすい環境にすると、自然と地域との関わりが生まれます。
また、高齢者の部屋に直接外へ出られる出入口を設けておくと、将来的に介護サービスを受けやすくなるという利点もあります。こうした外とのつながりは、孤立を防ぎ、日々の暮らしに安心感を与えてくれるのです。
年齢による体力の低下を見据えた工夫
同居を始めた当初は元気に見える高齢者も、年齢を重ねるにつれて体力や健康状態は少しずつ変化していきます。それでも「自分のことはできる限り自分で行う」という意識は、心身の健康を保つうえでとても重要です。住まいのつくりがそれを妨げないことが、長寿につながる秘訣といえるでしょう。
具体的には、トイレや浴室に近い部屋を用意すること、ベッドを置いても動きやすい広さを確保すること、湿気や臭気がこもらないよう換気をしっかり行えることが基本です。さらに、出入口を引戸にする、段差をなくす、手すりを設ける、足元を照らす照明を配置するなど、安全性と快適性を両立させる工夫が求められます。